Grupo COBA B&C Colombia

Corredor Ferroviario Sur

Datos Específicos

El Regiotram del Sur es un proyecto ferroviario en etapa de prefactibilidad que busca conectar el centro de Bogotá con el municipio de Soacha, a través de un sistema de transporte masivo sobre el antiguo corredor férreo del sur. Este proyecto busca consolidar un sistema de transporte multimodal, sostenible e incluyente, integrando el Regiotram del Sur con otras líneas férreas y sistemas como TransMilenio y el Metro de Bogotá.

Cobertura: Beneficiará a más de 3,5 millones de habitantes

Alternativas de trazado estudiadas: 7 alternativas sobre 3 corredores

Alternativa Seleccionada: Alternativa Nº 7:

  • Longitud estimada: 23,12 km, 
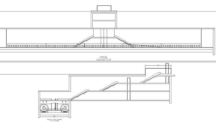
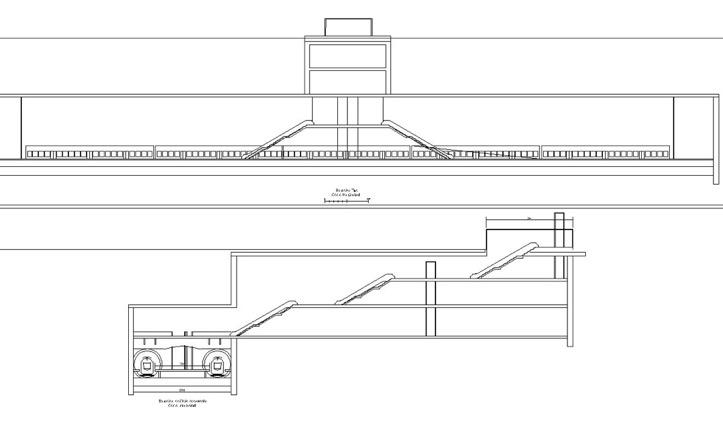
  • Tecnología propuesta: Metro pesado, subterráneo, compatible con una futura Tercera Línea del Metro de Bogotá.
  • Inicio del trazado: Estación Central (aproximadamente en la intersección de la Calle 26 con Av. Caracas).
  • Fin del trazado: Municipio de Soacha.
  • Estaciones: 18 en total, 14 en la ciudad de Bogotá y 4 en el Municipio de Soacha
  • Velocidad de diseño: 80 km/h; 
  • Vía doble, ancho de vía de 1 435 mm
  • Capacidad tren: 1 800 pax

Interventoría a los Estudios de Prefactibilidad.

Datos Generales
Sector: Infraestructura Urbana: Ferrovías
Servicio: Interventoría de Estudios y Diseños
Fechas: Inicio:
2022-02-01 Fin:
2023-06-30
Estado: Concluído
Localización: Cundinamarca, Colombia
Cliente: Instituto de Desarrollo Urbano, IDU